ECturn Inside swing door drive system * Integrated electromechanical swing door drive system for barrier-free single leaf doors up to 125 kg
- Drive is embedded in door leaf or frame and fulfils maximum design requirements
- Opening and closing speed can be individually adjusted
- Electrical latching action which accelerates the door shortly before the closed position
- Low-energy function opens the door with reduced speed, fulfilling the highest safety requirements
- Obstacle detection detects an object through contact and stops the opening or closing process
- Automatic reversing detects an obstacle and returns to the opening position
- Push & Go function triggers the automatic drive following light manual pressure on the door leaf
- Drive is used with guide rail
- Optional rechargeable battery provides maximum safety during a power failure
- Optional radio reception board for wireless activation by radio transmitter
Application Areas
- Single-action, single leaf, right and left closing doors
- Single-action doors up to 1100 mm leaf width or 125 kg weight
- Entrance and interior doors with moderate access frequency
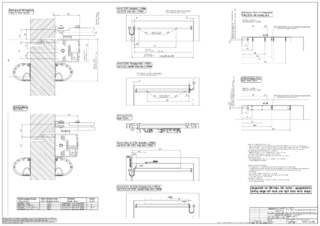
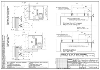
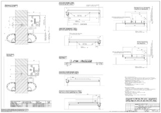
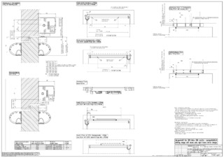
- For door leaf thicknesses from 55 mm
- Integrated installation in door or frame
- Barrier-free access
Installation situations in reference objects and videos
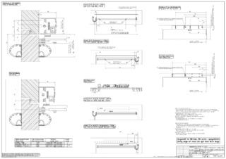
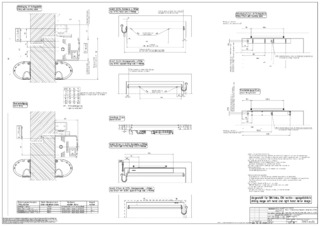
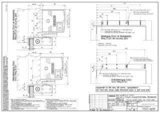
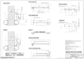
Technical data
| ECturn Inside swing door drive system | |
| Height | 61 mm |
| Width | 566 mm |
| Depth | 45 mm |
| Leaf weight (max.) 1-leaf | 125 kg |
| Leaf width (min.-max.) | 700 mm - 1100 mm |
| Drive type | Electromechanical |
| Opening angle (max.) | 110 ° |
| DIN left | Yes |
| DIN right | Yes |
| Installation in the door leaf | Yes |
| Installation in the door frame | Yes |
| Electrical latching action | Yes |
| Activation delay (max.) | 10 s |
| Operating voltage | 110 – 230 V |
| Power rating | 92 W |
| Power supply for external consumers (24 V DC) | 600 mA |
| Service temperature | -15 - 50 °C |
| IP rating | IP20 |
| Mode of operation | Off, Automatic, Permanently open, Night |
| Type of function | Fully automatic |
| Automatic function | Yes |
| Low-energy function | Yes |
| Key function | Yes |
| Obstacle detection | Yes |
| Automatic reversing | Yes |
| Push & Go | adjustable |
| Operation | Programme switch integrated in the drive, Programme switch TPS, MPS programme switch |
| Parameter setting | Control unit, Programme switch DPS |
| Standard conformity | EN 16005 |
Downloads
Variants & Accessories
* Notice about the products displayed
The products mentioned above may vary in form, type, characteristics and function (design, dimensions, availability, approvals, standards etc.) depending on the country. For questions please contact your GEZE contact person or send us an E-Mail .