Search filter

20 results found

User manual supplementary sheet GEZE USB programming adapter
User manual

warten, bis Programmschalter dunkel ist. Bei allen anderen DCU´s, bis keine LED auf der Steuerung mehr leuchtet.)  Die Kontakte der Schnittstelle nicht mit bloßen Händen berühren. Den beigelegten 5-poligen Zwischenstecker (erforderlich für DCU5, DCU7 und DCU8) nur mit isolierter Zange ziehen.  Verwenden Sie nur Software, die zur spezifischen DCU passt!  Eine Schiebetür in Rettungswegen muss während der Programmierung offen sein, falls sich noch Personen im Gebäude befinden! Safety instructions • Use permitted only authorised by GEZE! Firmware und GEZE Flasher Download Für jede DCU stellt GEZE über das GEZE Software Portal (erfordert eine Registrierung) eine Firmware und eine Flashing Software als ZIP-Dateien zur Verfügung. In den ZIP-Dateien finden Sie detaillierte Instruktionen zum Flashen der jeweiligen Firmware. Downloading the firmware and GEZE Flashers GEZE offers in the GEZE Software Portal (registration required) for each DCU the corresponding firmware and flashing software in compact ZIP files. Detailed installation instructions are found there. • • • • by specialists Disconnect the DCU from mains before connecting and disconnecting the programming adapter! (On DCU1 wait, until program switch display is off. At all other DCU´s until no LED are “on”, on the board.) Due to electrostatic discharge avoid touching the contacts. Remove the connector form the control unit with an isolated pincer. Use only software dedicated to the specific DCU! A sliding door in escape and rescue routes must be open during programming, if anybody should be inside of the building! Dokumentation für die Programmierung Documentation for Programming DCU Mat. Nr. Dokumentation Mat. No. Documentation DCU1 DCU1-2M 105010 105011 113229_Programmieranleitung DCU1 USB_V1.0_DE.pdf 115324_Programmieranleitung DCU1 USB_V1.0_EN.pdf DCU1-NT DCU1-2M-NT 158615 161939_Programmieranleitung DCU1-NT USB_V1.0_DE.pdf 161940_Programmieranleitung DCU1-NT USB_V1.0_EN.pdf DCU1-2M-S-NT 158616 DCU2 101592 DCU5* 118444 DCU6 125344 DCU7* 130905 DCU8* 154844 158616 163153_Programmieranleitung DCU1-2M-S-NT USB_V1.0_DE.pdf 163154_Programmieranleitung DCU1-2M-S-NT USB_V1.0_EN.pdf 170518_Programmieranleitung DCU2_V1.0_DE.pdf 170519_Programmieranleitung DCU2_V1.0_EN.pdf 170516_Programmieranleitung DCU5_V1.1_DE.pdf 170517_Programmieranleitung DCU5_V1.1_EN.pdf 170514_Programmieranleitung DCU6_ V1.0_DE.pdf 170515_Programmieranleitung DCU6_ V1.0_EN.pdf 170512_Programmieranleitung DCU7_V1.0_DE.pdf 170513_Programmieranleitung DCU7_V1.0_EN.pdf 162052_Programmieranleitung DCU8 USB_V1.0_DE.pdf 162053_Programmieranleitung DCU8 USB_V1.0_EN.pdf *DCU erfordert den mitgelieferten 5-poligen Zwischenstecker / *DCU requires the

User manual Perlan AUT-NT
User manual

warten, schließen STOPP-Taste 2) Tür bleibt zu, bis StoppTaster inaktiv. Eine Ansteuerung AUFTaste bleibt 20 s gespeichert. Wenn in der Zeit die Stopp-Taste inaktiv wird, wird geöffnet. Tür hält an, Offenhaltezeit wird gesetzt. Wird die STOPP-Taste innerhalb der Offenhalte­ zeit inaktiv, öffnet die Tür weiter, ansonsten schließt die Tür. Tür bleibt offen, ­Offenhaltezeit wird neu gesetzt, so lange die Taste aktiv ist. Tür hält an, wird STOPPTaster inaktiv, so schließt die Tür. Bei einer Behinderung --- Tür hält an, wartet kurz, probiert weiter zu öffnen (max. 3×). Wenn nicht geöffnet werden kann, schließt die Tür. --- reversiert, öffnet, ­Offenhaltezeit ab­warten, schließen Start der Offenhaltezeit, wenn die Tür offen und die AUF-Taste inaktiv ist 1) ggf. zusätzliche Ansteuersensoren AUF an die selbe Klemme 2) höhere Priorität als AUF-Taste und ZU-Taste Die Funktion Push & Go verhält sich wie das Drücken der AUF-Taste. Werden die AUF- und ZU-Tasten gleichzeitig gedrückt: àà bei weniger als

Supplementary sheet GC 151 lintel-mounted smoke switch
Supplementary sheet

Warten bis die Zustandsanzeige wieder –grün GEZE Scandinavia AB avd. Norge E-Mail: chinasales@geze.com.cn E-Mail: norge.se@geze.com Türflügel ganz öffnen. Türflügel wird in der Offenlage von der www.geze.com.cn www.geze.no Feststellanlage gehalten. France Scandinavia – Denmark GEZE France S.A.R.L. GEZE Danmark Jetzt das Prüfaerosol im Abstand von 15 cm indanmark.se@geze.com die freie RauchöffE-Mail: france.fr@geze.com E-Mail: www.geze.fr www.geze.dk nung in kurzen 1Hungary s Sprühstößen im Abstand von

Lintel-mounted smoke switch GC 161
Supplementary sheet

Warten E-Mail: gezesea@geze.com.sg www.geze.com grün leuchtet.www.geze.hu Iberia South Africa 2. Türflügel ganzGEZE öffnen. Türflügel wird in der Offenlage von Iberia S.R.L. GEZE South Africa (Pty) Ltd. E-Mail: info.es@geze.com E-Mail: info@gezesa.co.za der Feststellanlage gehalten. www.geze.es www.geze.co.za Austria GEZE Austria India 3. Jetzt das Prüfaerosol im Abstand vonSwitzerland 15 cm in die freie E-Mail: austria.at@geze.com GEZE India Private Ltd. GEZE Schweiz AG www.geze.at E-Mail: schweiz.ch@geze.com Rauchöffnung in kurzen

Perlan AUT-NT
Wiring diagram

warten, schließen geschlossen STOPP-Taste 2) Tür bleibt zu, bis StoppTaster inaktiv. Eine Ansteuerung AUFTaste bleibt 20 s gespeichert. Wenn in der Zeit die Stopp-Taste inaktiv wird, wird geöffnet Tür hält an, Offenhaltezeit wird gesetzt. Wird die STOPP-Taste innerhalb der Offenhalte­ zeit inaktiv, öffnet die Tür weiter, ansonsten schließt die Tür. Tür bleibt offen, ­Offenhaltezeit wird neu gesetzt, so lange die Taste aktiv ist. Tür hält an, wird STOPPTaster inaktiv, so schließt die Tür Behinderung --- Tür hält an, wartet kurz, probiert weiter zu öffnen (max. 3×). Wenn nicht geöffnet werden kann, schließt die Tür --- reversiert, öffnet, ­Offenhaltezeit ab­warten, schließen Start der Offenhaltezeit, wenn die Tür offen und die AUF-Taste inaktiv ist 1) ggf. zusätzliche Ansteuersensoren Schließen an die selbe Klemme 2) höhere Priorität als AUF-Taste und ZU-Taste Die Funktion Push & Go verhält sich wie die AUF-Taste. Werden die AUF- und ZU-Tasten gleichzeitig gedrückt: àà bei weniger als

GEZE GC 403 wind direction sensor
Installation instructions

warten zu lassen. Die Einbaufirma muss den Betreiber der Anlage auf diesen Teil der Montageanleitung aufmerksam machen, und diese sowie die Benutzerinformation dem Betreiber aushändigen. DE

GEZE GC 401 RS GC 402 WVS wind and rain sensor set
Installation instructions

warten zu lassen. Die Einbaufirma muss den Betreiber der Anlage auf diesen Teil der Montageanleitung aufmerksam machen, und diese sowie die Benutzerinformation dem Betreiber aushändigen. DE

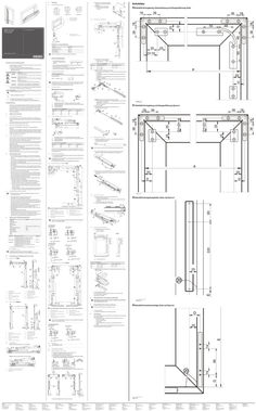
RWA 105 NT window system
Installation instructions

warten. XX Funktion prüfen. Zustand von Mechanik und Stromleitung prüfen. Grau hinterlegte Positions-Nummern verweisen auf Bohrbilder f D S F d 14 17 18 19 A j ;

RWA 100 NT window system
Installation instructions

warten. Funktion prüfen. Zustand von Mechanik und Stromleitung prüfen. Entsorgung Die Fensteranlage besteht aus Materialien, die der Wiederverwertung zugeführt werden sollten. XX Die Einzelkomponenten entsprechend ihrer Materialart sortieren: àà Aluminium (Profile) àà Eisen (Schrauben usw.) àà Kunststoffe àà Elektronikteile (Motor, Steuerung, Transformator, Relais usw.) àà Kabel Die Teile können beim örtlichen Wertstoffhof oder durch ein Schrottverwertungsunternehmen entsorgt werden. L-Metall Überschlag 15 Holz B2 àà Die Fensterlager und deren Befestigungen müssen einer statischen Belastung von 1000 N standhalten. àà Bei Kunststofffenstern muss zusätzlich ein Auflaufbock angebracht werden.

User manual GEZE SecuLogic GCER 100
User manual

warten, bis der Leser nicht mehr blinkt und die blaue LED dauerhaft leuchtet (ca. 45 sec). Einzelnen XX Masterkarte länger als