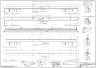
TS 5000 L-E-ISM VPK

TS 5000 L-E-ISM VPK * Overhead door closer system with guide rail, for opposite hinge side, for double leaf doors with anti-panic function, closing sequence control and electrical hold-open device

Door closer TS 5000 L-ISM VPK Overhead door closer system with guide rail opposite hinge side for double leaf doors with anti-panic function, closing sequence control and hydraulic latching action.
  • Supply voltage 24 V DC
  • Retention force of the electromechanical hold-open device can be variably adjusted
  • Height compensation of +/- 2 mm possible
  • Closing sequence control holds the active leaf in the waiting position until the passive leaf is closed
Contact us

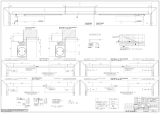
Application Areas

  • Double leaf doors with closing sequence control
  • Hold-open systems with integrated hold-open device
  • Installation on the opposite hinge side
  • Right and left single-action doors
  • Symmetrical and asymmetrical division of door possible

Technical data

TS 5000 L-E-ISM VPK
Leaf width (max.) 1400 mm
Identical design for DIN left and DIN right Yes
Input voltage 24 V DC
Electrical power consumption 4.8 W
Duty rating 100 %
Residual ripple 20 %
IP rating IP43
Minimum hinge clearance 1300 mm
Minimum passive leaf width 380 mm
Standard conformity EN 1154:1996/A1:2002/AC:2006, EN 1155, EN 1158
Length 2730 mm
Width 55 mm
Height 30 mm
opening restrictor upgradable Yes
Hold-open device on the active leaf / passive leaf Yes / Yes
Hold-open device can be overridden Yes
Hold-open range 80 °
Closing sequence control integrated Yes
Height correction possible Yes
Flexible opening restrictor Yes

Downloads

Variants & Accessories

Contact

ZA GEZE Central +27-11-315-8286 24h Service Hotline +27-10-500-0552